Çözüldü Palit 3080 Ti Gamerock OC termal pad değişimi

Bu konu çözüldü olarak işaretlenmiştir. Çözülmediğini düşünüyorsanız konuyu rapor edebilirsiniz.

DemirKipi

Hectopat
Katılım
10 Haziran 2021
Mesajlar
1.297
Çözümler
18
Yer
İstanbul
Daha fazla  
Sistem Özellikleri
İşlemci: Intel Core i7-10700K
Ekran Kartı: Palit RTX™ 3080 Ti GameRock OC
Anakart: Asus TUF GAMING Z490-PLUS
RAM: GSKILL (2x8GB) RipjawsV DDR4 3200MHz CL16
SSD: Corsair MP510 240GB M.2 & Samsung 1TB 980 M.2
Kasa: Lian Li Lancool-215Soğutucu: Scythe Fuma 2
PSU: Thermaltake Toughpower GF1 750W 80+ Gold
Cinsiyet
Erkek
Merhaba,
Yaklaşık 6-7 ay miningte kullanılmış bir ekran kartı satın aldım. Sıcaklıklara bakarak termal padlerin değişmesi gerektiğini düşünüyorum. Reddit'ten ekran kartı için gerekli termal pad kalınlıklarını öğrendim ve 1mm ve 2mm Pullsar Ice Dragon termal pad siparişi verdim.
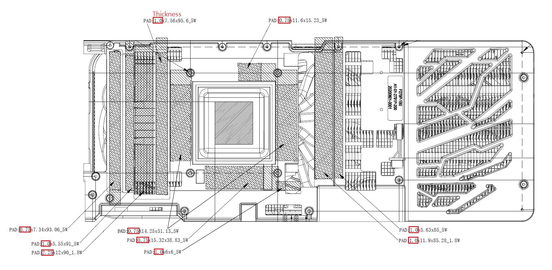
Termal pad şemasına bakacak olursak 0.75mm, 1mm, 2mm ve 2.25 mm termal pad kullanmam gerekiyor. 0.75mm olan yerlere 1mm kullanmamda ezilme payı olduğu için sakınca olmadığı yazıyor birçok yerde.
Asıl sorum şu; 2.25mm olan tek bir termal padin yerine 2mm kullansam sakıncası olur mu?
Bulduğum şema şu şekilde;

d8zl83kr2bf71.jpg


g8qaa7vr2bf71.jpg
 
Son düzenleyen: Moderatör:
Çözüm
2,25mm olan ped yerine 2mm ped uygulanamıyormuş. Araştırmalarım sonucu öğrendim ve ona göre değişiklik yaptım.

Palit 3080 Ti Gamerock termal ped değişimi;

1mm ve 2mm termal ped satın aldım. Pullsar Ice Dragon termal pedleri tercih ettim.

1mm sayfası
2mm sayfası

Ben 0,75'lerin yerine 1mm termal ped uyguladım. Biraz ezilme payı var ama bu işlem zorlayıcı olabiliyor. Ama olursa da daha sağlıklı sonuçlar alıyorsunuz.

2.25mm olan pede dokunmadım. Orjinal haliyle kalan tek ped oydu. 0,75, 1mm ve 2mm pedleri yediledim. 2,25mm sadece 1 tane ve çok da kritik bir yerde değil o yüzden değiştirmeye gerek yok.

Pedleri taktıktan sonra ilk aşamada VRAM'ler oldukça serin fakat GPU sıcaklığı oldukça yüksek değerlere çıkıyordu. Furmark ile kartı 80 dereceye kadar zorladım. Sonra bilgisayarı kapatıp kartı söküp GPU vidalarını biraz daha sıktım. Aynı ısıtma işlemi ve sıkma işlemini bir kez daha yaptıktan sonra istediğim sonuçları alabildim. Isıtınca termal pedlerin biraz daha esneme payı olduğu için vidaların biraz daha sıkma payı oluyor.

GPU için kullandığım termal macun.
peki normalmi 80 82 olması ve fanı max de kullanması yani bakır pad mi kullansam emin olamadım bu ısılarda bu gurultuyle nasıl bi çözüm bulmalıyım bilemedim fan 3000 lere çıkıyor ve tahamul edilecek gibi değil ses ısıyı ve fanı düşürmek için ne yapabilirim kartı alalı 2 gun oldu ve 2 gundun bunlarla urasıyoruz
Maalesef bu kart için normal. Sessiz ve serin çalışması için tasarlanmamış. Dediğim gibi ben de sesten rahatsız olup fanlarını değiştirmiştim ve şuan o şekilde kullanıyorum. Bahsettiğim fan modu şöyle bir şey;

p2dcw556eqe61.jpg



Not: Görsel bana ait değil ancak neredeyse bununla birebir aynı görünüyor.
 
Merhaba,
Yaklaşık 6-7 ay miningte kullanılmış bir ekran kartı satın aldım. Sıcaklıklara bakarak termal padlerin değişmesi gerektiğini düşünüyorum. Reddit'ten ekran kartı için gerekli termal pad kalınlıklarını öğrendim ve 1mm ve 2mm Pullsar Ice Dragon termal pad siparişi verdim.
Termal pad şemasına bakacak olursak 0.75mm, 1mm, 2mm ve 2.25 mm termal pad kullanmam gerekiyor. 0.75mm olan yerlere 1mm kullanmamda ezilme payı olduğu için sakınca olmadığı yazıyor birçok yerde.
Asıl sorum şu; 2.25mm olan tek bir termal padin yerine 2mm kullansam sakıncası olur mu?
Bulduğum şema şu şekilde;

Eki Görüntüle 1368041

Eki Görüntüle 1368043
Bende değiştirmek istiyorum beceremedimm yüke bindiğinde fan 100 vuruyor tam oturmuyor padler vs eli yatkın anlayan üstad varmıdır
 
Bende değiştirmek istiyorum beceremedimm yüke bindiğinde fan 100 vuruyor tam oturmuyor padler vs eli yatkın anlayan üstad varmıdır
Pad kalınlıklarına dikkat edin. Eğer daha ince ya da daha kalın pad kullanırsanız olmaz. Pad kalınlıkları doğruysa ve yine de olmuyorsa kartınızı bilgisayarınıza takıp bir miktar ısıttıktan sonra bilgisayarı kapatıp ekran kartını çıkartın ve vidaları biraz daha sıkın. Isınıp yumuşayan pad vidaların bir miktar daha sıkılmasına olanak sağlıyor. Ben bu şekilde düzeltmiştim. Aynı işlemi 2 ya da 3 kere tekrarlamıştım.
 

Bu konuyu görüntüleyen kullanıcılar

Technopat Haberler

Geri
Yukarı